This September marked an exciting milestone: the opening of our new 16,000-square-foot training center at the WAVS flagship campus in the capital of Guinea-Bissau. This is the largest infrastructure project in our history. Its completion marks the start of a new chapter — not only in the story of WAVS, but also in the stories of thousands of young men and women in Guinea-Bissau who are seeking the opportunity to work for a brighter future.
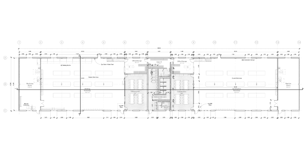
The new training center has the capacity to serve up to 200 students each year in four programs: welding, machining, carpentry, and solar technology (launching next year). With classrooms, teachers’ offices, bathrooms, and four fully equipped workshops, this facility represents a big step toward the vision of a 28-acre campus that will one day train more than 2,000 students each year — all while sharing the Good News of Jesus through word and deed.

The new training center has already made an immediate impact by providing WAVS with the space to double the number of welding students we can train. Pictured above are the 44 students enrolled in the welding program this year, which is double the number compared to last year.



The new building also features classrooms, teachers’ offices, men’s and women’s bathrooms, and four large workshops – all outfitted with the machines, equipment, and tools to train up to 200 students each year.
Constructing the New Training Center
January 2024- September 2025

Excavation for the foundation began in January 2024.
A thick slab was laid on the building’s large footprint (13,000 sf).


Cinderblock walls were built 5 meters tall (more than 16 feet).
The steel roof system was prefabricated in Portugal and imported to Guinea-Bissau.

WAVS Training Center: By the Numbers

4,000
The square-foot size of each of the two large workshops in the building (for welding and solar technology). The other two workshops are 1,000 s.f. each (machining and carpentry).
10
The number of students enrolled in the first-ever WAVS carpentry program, which launched in the new training center in September.


$68,000
The funds WAVS received from a Rotary International grant to purchase the machines and equipment installed in the new training center.
44
The number of welding students enrolled this year (double last year’s enrollment thanks to the extra space available in the new training center).

From Design Concept to Final Construction

An architectural firm in Clovis, California, developed the original design for the training center. The design concept and building layout was based on input we received from several sources, including vocational education experts in the United States, as well as our local staff on the ground in Guinea-Bissau.




